breton theater. logroño

La relación de lo nuevo con lo existente es uno de los grandes temas de la arquitectura.

Proponer un arquitectura, que siendo de su tiempo, sepa insertarse y coserse en un contexto previo es nuestra ambición, como lo es el hecho mismo de la ciudad contemporánea.

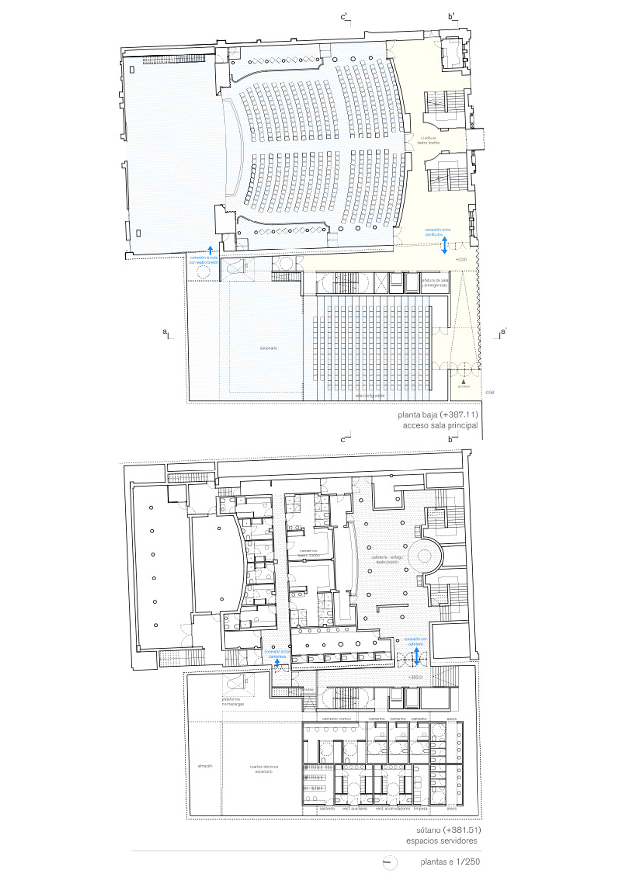
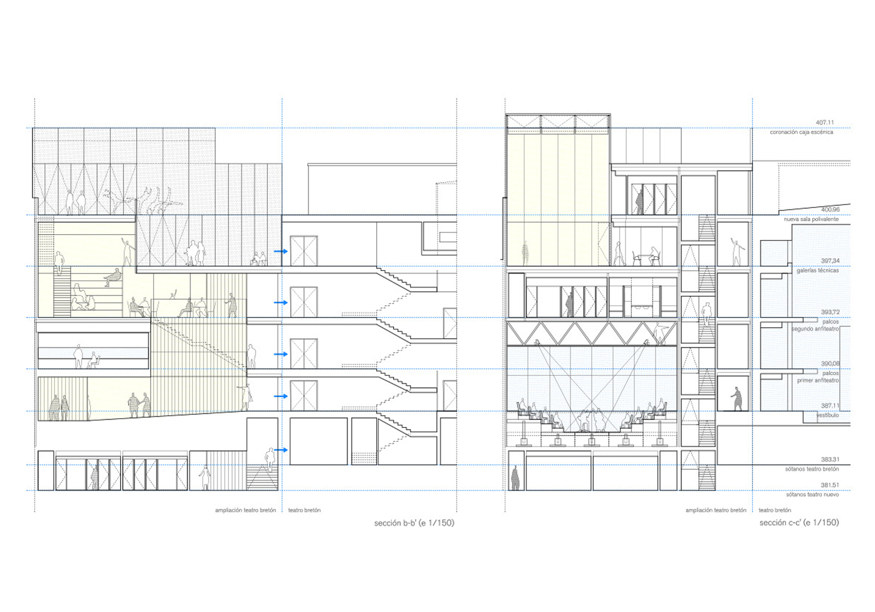
Así la relación de las nuevas salas en ampliación con el existente Teatro Bretón tienen su punto fuerte en el lienzo de fachada, donde las líneas de cornisas de ambos edificios colindantes ayudan a soportar la suave volumetría de la fachada.

Esta nueva volumetría pretende recoger de una manera más abstracta los movimientos ondulantes del Teatro Bretón y sus ritmos verticales de carpinterías, sobre un fondo más terso que lo relaciiona con el antiguo Palacio de Justicia. 

El retranqueo de algunos volúmenes del programa completan la posibilidad de que el edificio se presente a la calle hermanando con los existentes, siendo sin embargo un edificio de mayor altura.

Se plantea una nueva relación directa y en continuidad del espacio exterior de la calle Bretón de los Herreros con el interior a través del vestíbulo en planta baja, en vertical se extiende visualmente hacia los espacios públicos que se adentran en el nuevo volumen y que cosen las distintas estancias del programa a modo de "raumplan", donde la magia del teatro trasciende al mero espacio de la sala. Espacios públicos de diferentes usos y alturas que se concatenan proporcionando una utilización polivalente del espacio, lo estancial y lo colectivo se entrelazan por circulaciones diversas, por relaciones visuales diagonales y por el enmarque alternativo de visiones reales y virtuales (reflejos).

This website uses cookies. By continuing to use this website, you agree to the use of cookies. More info here.