house in loredo. cantabria

sol y sombra*

what a number of variations summed up in just two words.

both a line on the ground that moves slowly but unstoppably,

the freshness among orange trees,

an itch on the cheek when the body is still cold.

also an isotropic space when neither one nor the other appear.

a permeable and serene continuum, alive and changing.

house or town?

a seemingly casual grouping that as a concept has no scale.

geometry as a support of the fortuitous.

the house is a box of walls, but they may not be its shelter.

a sol y sombra, please.

cheers!

 

*sol y sombra, translates literally as sun & shadow but it is also the name of a typical spanish drink, a combination of anisette and brandy served on a shot glass 

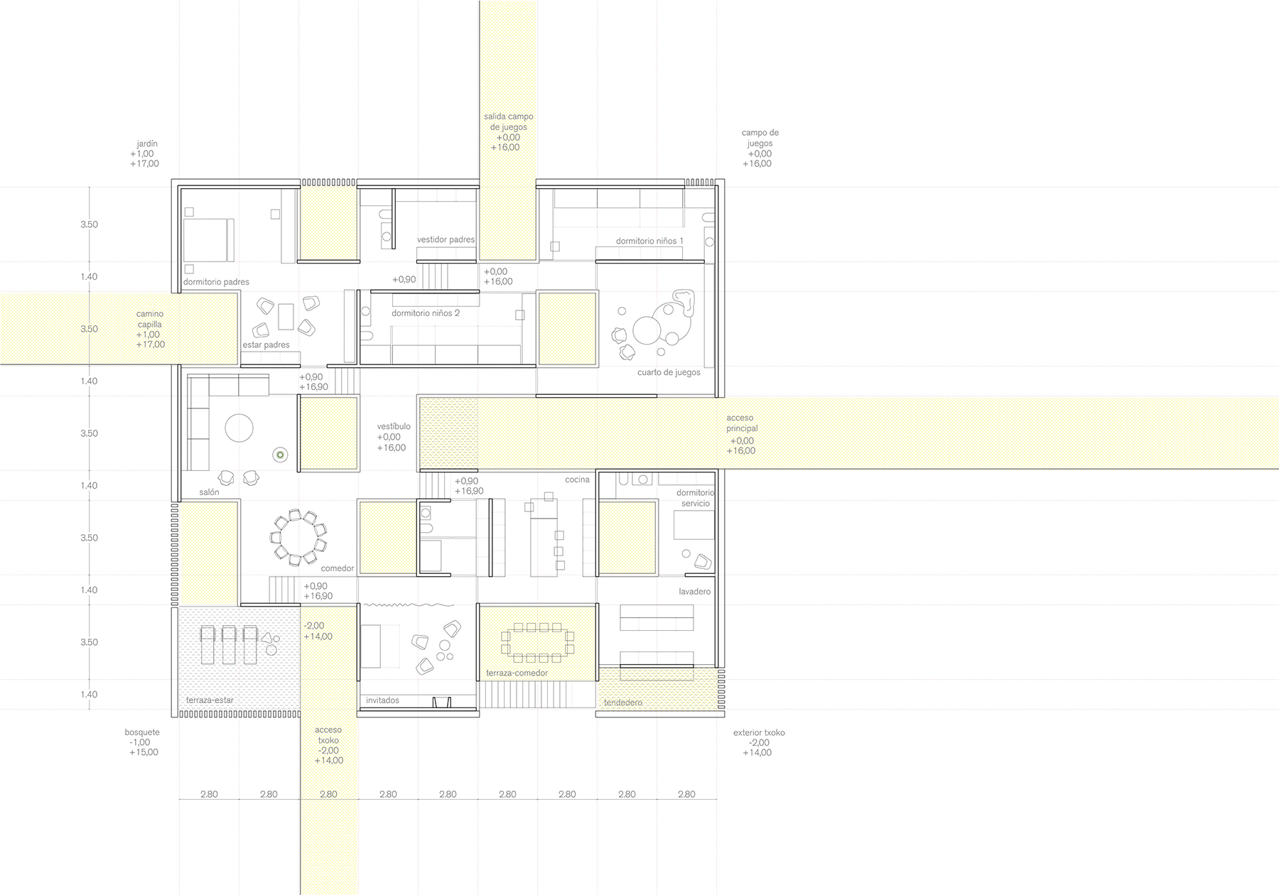
facts

location: cantabria

client: private

date: september 2021

built area: 560 m2

design team:  estudio__entresitio; maria hurtado de mendoza, cesar jimenez de tejada, alvar ruiz, maria urigoitia, peio erroteta, carlos diaz del rio

This website uses cookies. By continuing to use this website, you agree to the use of cookies. More info here.