pabellon de cristal refurbishment. madrid

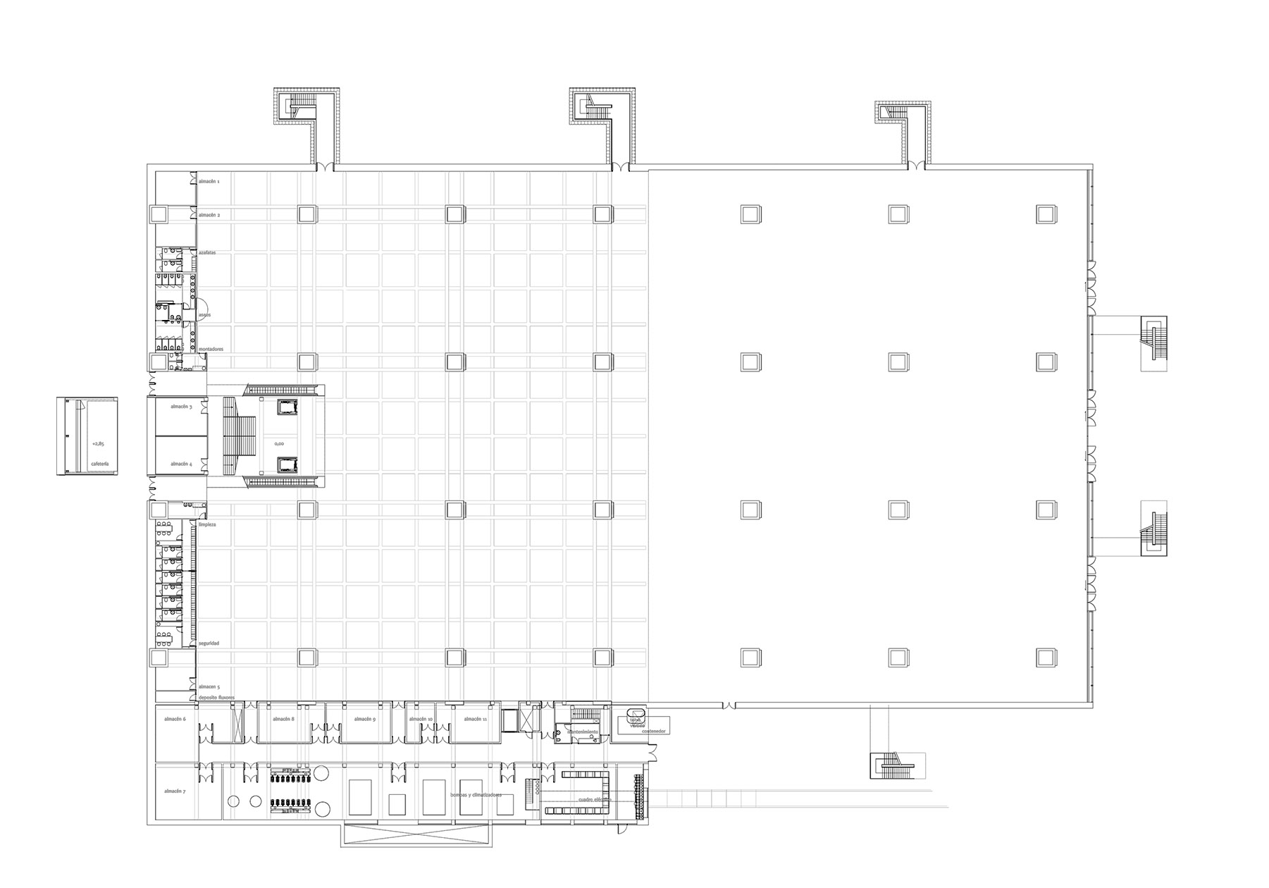
the glass pavilion has 20,200 m2 of exhibition space, divided into three floors connected by elevator and escalators. the original project of the general works of the crystal pavilion, was written in july 1964 by francisco asís cabrero, being its date of initiation on august 5, 1964 and its completion being set for may 1, 1965. the integral reform of the glass pavilion is carried out to correct the material and programmatic obsolescence. the works are carried out in 5 independent phases of four months during the summer period so as not to interrupt the annual operation of the pavilion. the glass pavilion is a building cataloged as a bic, "good of cultural interest", so the reform has been sensitive to the heritage requirements of the community of madrid and town hall. the reform focused on the recovery of the original state of the project in terms of the main spaces, creating new server and circulation spaces adapted to the functional needs of today, eliminating architectural barriers and adding elevators for a greater flow of users. apart from the restoration and comprehensive renovation work inside the building, two large outdoor actions have been necessary: the execution of an underground plant connected to the building by means of an underground gallery and the addition of very light metal staircase towers exempt connected with walkways to the building as new evacuation routes.

facts

location: españa, madrid, av. principal 16

client: madrid espacios y congresos

completion date: 2013

built area: 24.294m2

costs: 6.633.109 euros

design team:  estudio__entresitio; maria hurtado de mendoza, cesar jimenez de tejada, jose maria hurtado de mendoza

consultans: geasyt (mep), planta paisajistas (landscape), copredije s.a (safety)

main contractor: ferrovial

photo credits: raúl belinchon

 

 

awards

  • first prize concurso público

This website uses cookies. By continuing to use this website, you agree to the use of cookies. More info here.