cms villaverde public healthcare center
public medical center cedt
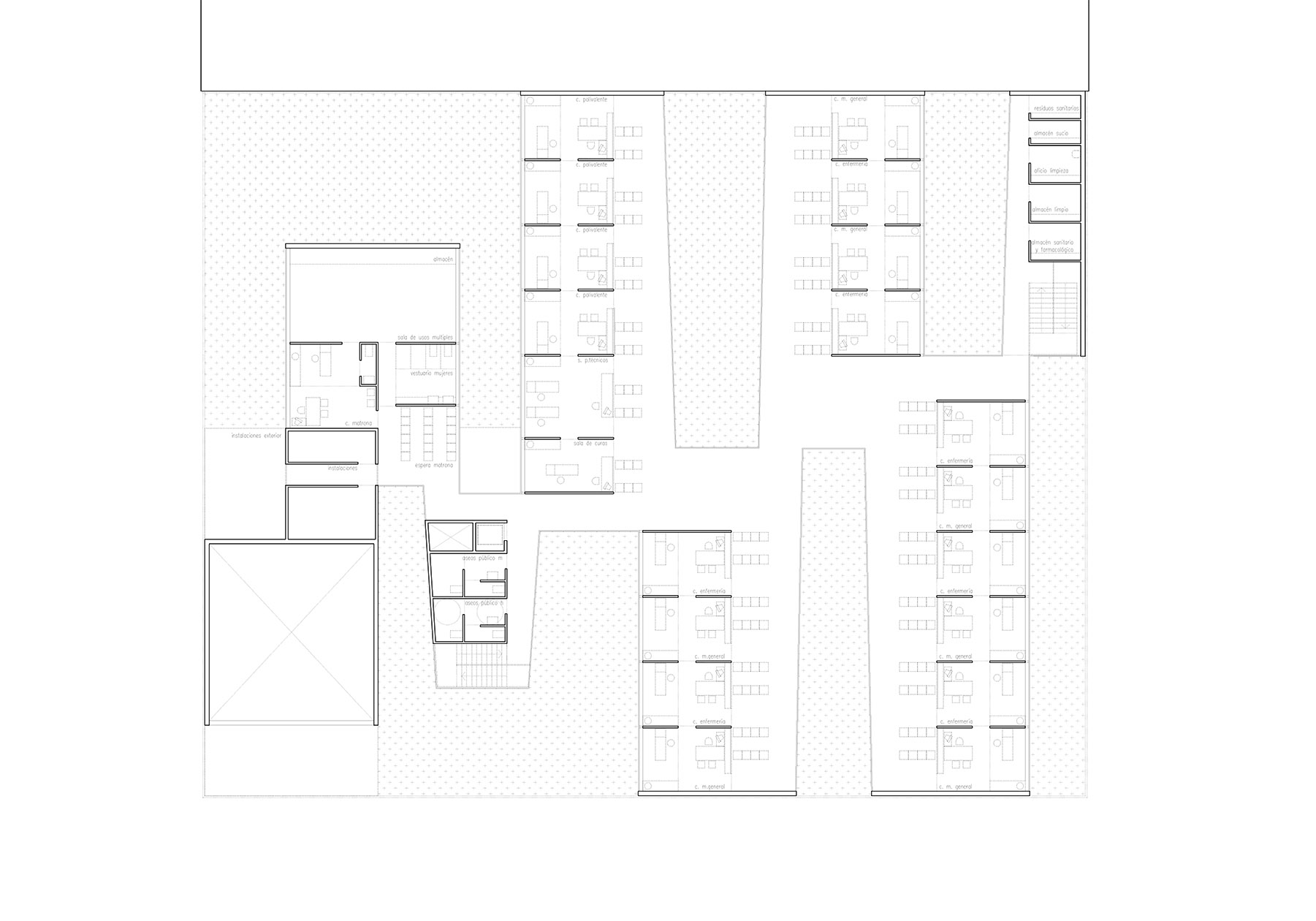
public healthcare center 'soria norte'
public healthcare center in minglanilla
This website uses cookies. By continuing to use this website, you agree to the use of cookies. More info here.