sport cultural public center . bogota

to build a place

when we talk about a place, buildings don't usually come to our heads; we thought of a square with a bench in the corner where you were waiting for your friends, or in a shady place where to play parcheesi or rehearse a dance, or on the road we walked with the family hand in hand.

their qualities are those of the activities they welcome, invite to be and become part of the collective memory, memories of so many who live them. the project we present proposes to build a place to blur the building as such to become a collective space-landscape that is threshold but also shelter. It adjusts to the context conditions without denying any, responding with attention to some important issues:

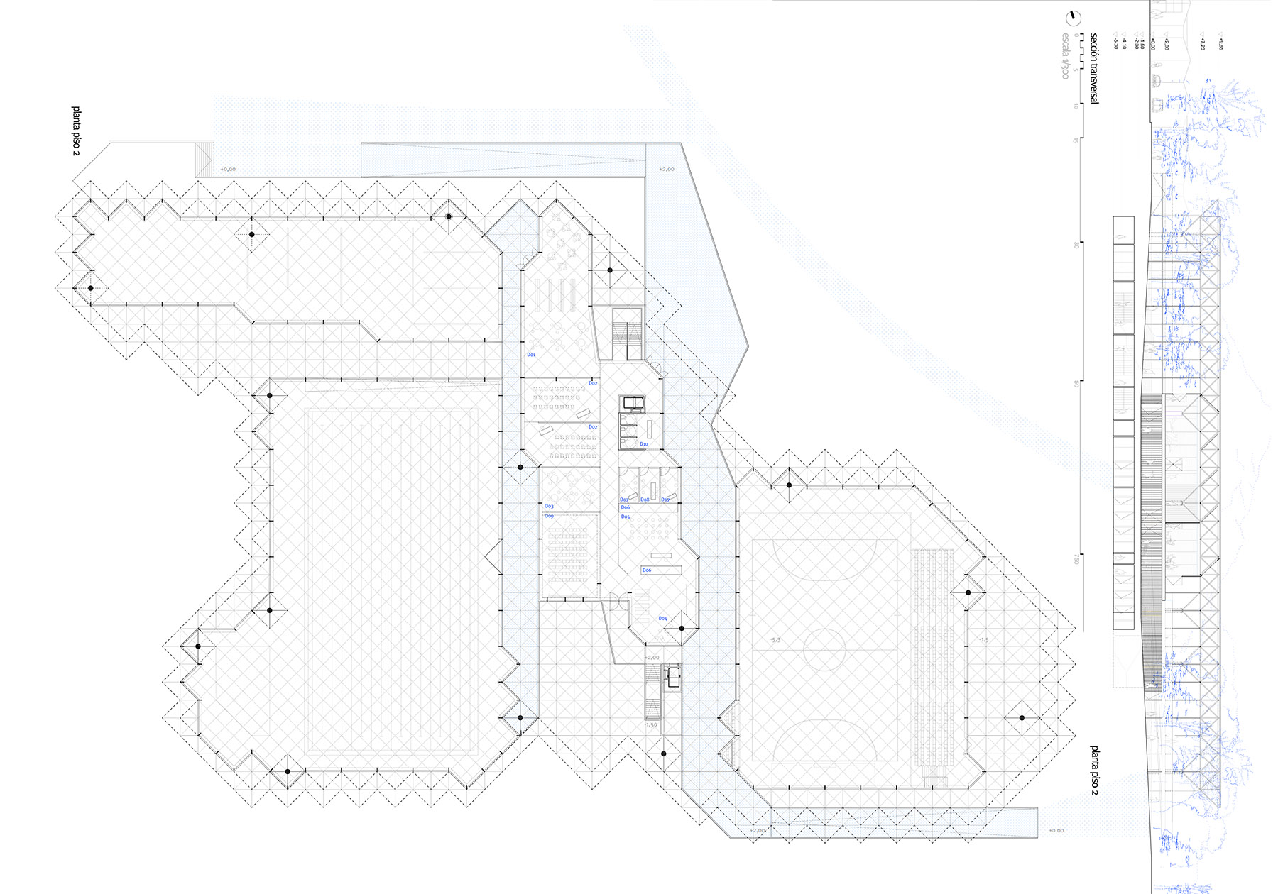
-sports spaces meet slightly to soften the impact of their height, building a new accessible topography that results in better integration into the park.

-between the main sports volumes a threshold is generated, which is allowed to cross when the park is open, turning the project itself into a new entrance.

-the cultural spaces are located on this welcome space, configuring a street in height, unfolding the floor plan, which is accessed both from the park and from the edge of the city with segregated working hours.

-the different pieces of the program are sewn by means of a structure with a light roof, shade and shelter that gives the whole the spatial quality of continuous occupable, covered or permeable according to zones.

This website uses cookies. By continuing to use this website, you agree to the use of cookies. More info here.