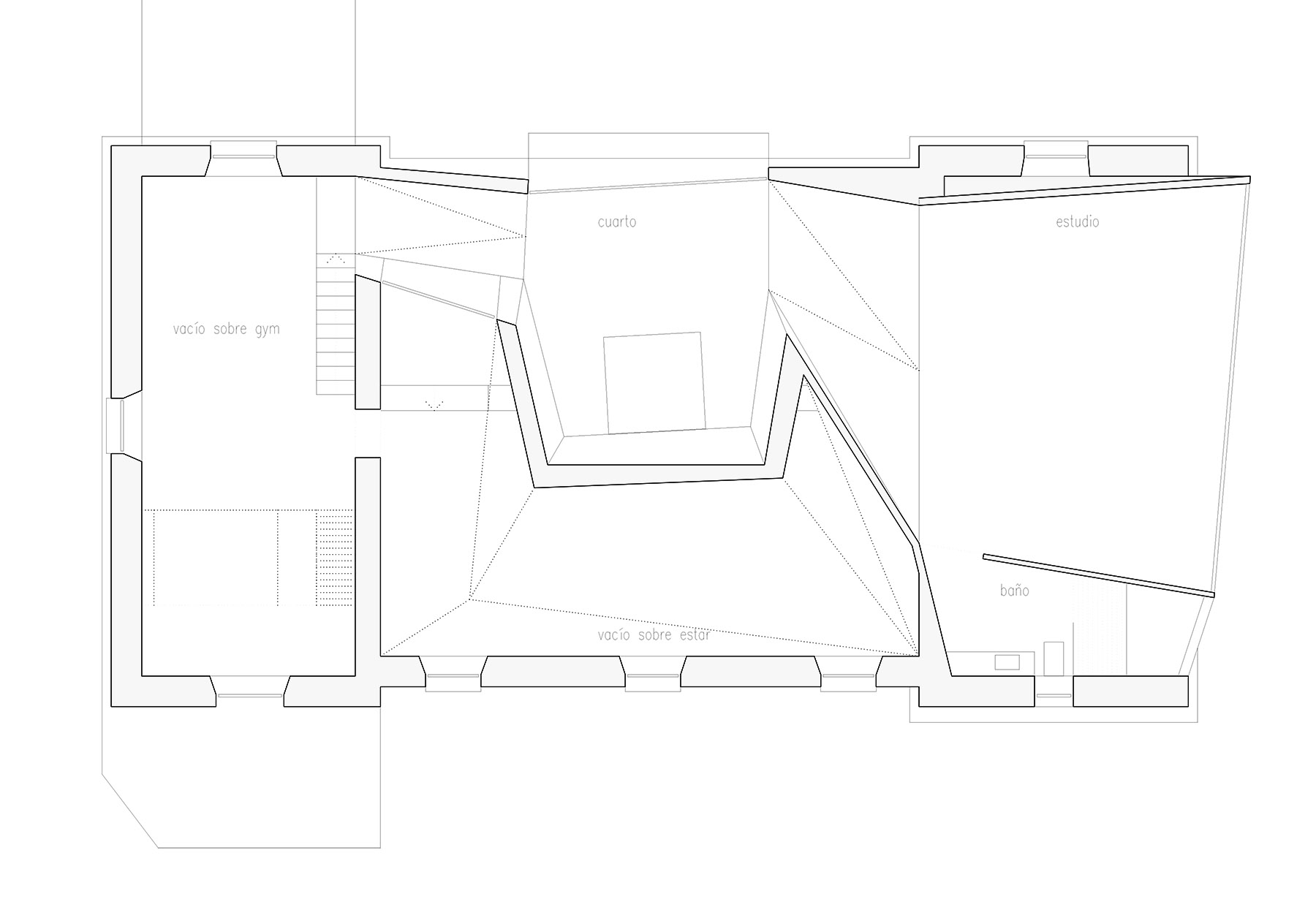
train station restoration in santo tome . segovia

This website uses cookies. By continuing to use this website, you agree to the use of cookies. More info here.